发布时间:2024-06-16 10:18来源:财神爷站
近日有一些小伙伴咨询小编CAD快速看图怎么设置测量比例?下面就为大家带来了CAD快速看图设置测量比例的方法,有需要的小伙伴可以来了解了解哦。
第一步:首先我们打开电脑桌面上的CAD快速看图软件,然后我们打开图纸。在布局中测量或大样图测量中,会遇到测量结果和标注不一致(如图所示)。

第二步:打开图纸后,点击工具栏的“调整比例”按钮,进行测量比例调整(如图所示)。

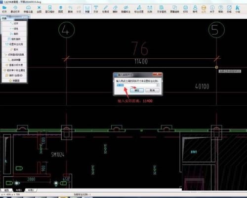
第三步:接着我们按照提示,选择一条已知长度的线段端点(如图所示)。

第四步:然后我们在弹出对话框内,填入实际距离(图纸上标注的),点击确定(如图所示)。

第五步:这个时候重新测量刚才的线段,发现测量结果和标注一致。观察软件下方的当前比例,可以发现比例已经改变(如图所示)。
