发布时间:2022-08-24 13:02来源:财神爷站
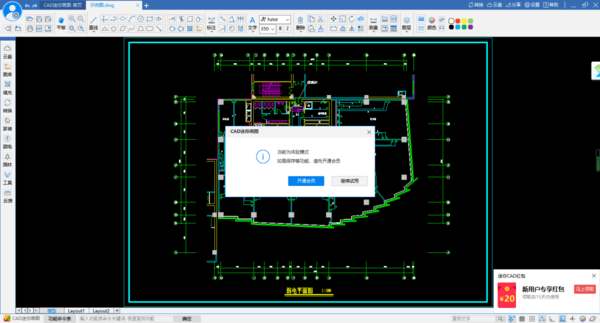
CAD迷你画图不开会员能保存图纸吗,因为CAD迷你画图软件是一款小巧便捷的看图软件,同时我们也可以在该软件上制图,日常工作使用非常的方便。但是,很多小伙伴在使用CAD迷你画图软件的时候,发现软件经常会提示不是迷你CAD会员,暂时无法使用该功能,因此自己制作好的图纸不开会员能不能保存就成为了很多小伙伴们关心的事情。

CAD迷你画图不开会员能保存图纸吗
根据财神爷站小编的亲自使用以及查找各种资料内容来看,CAD迷你画图不开会员是不能够保存图纸的,我们必须要开通迷你CAD会员,才能够获得保存图纸的权限。

介绍完了CAD迷你画图不开会员能不能保存图纸的内容后,那么CAD迷你画图不开会员能分享图纸给好友吗,继续往下看吧。
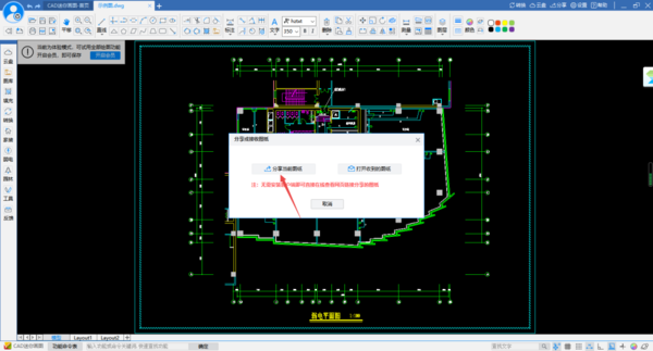
CAD迷你画图不开会员能分享图纸给好友吗
根据财神爷站小编的亲自使用以及查找各种资料内容来看,目前CAD迷你画图不开会员能分享图纸给好友,而且分享的方法也是超级的简单的,下面小编就继续为大家介绍一下CAD迷你画图分享图纸给好友的方法。
CAD迷你画图怎样分享图纸给好友
根据财神爷站小编的亲自使用以及查找各种资料内容来看,目前CAD迷你画图软件图纸分享给好友的方法有两种,第一种就是通过生成二维码的方式进行图纸的分享,第二种则是通过生成链接的方式进行图纸的分享,详细操作步骤下面小编一一为大家进行介绍。
CAD迷你画图分享图纸给好友的方法一
1、首先打开图纸,然后点击【账号】图标,然后选择【发送给微信朋友】选项。

2、接着图纸分享的二维码就会被生成,我们设置好【访问权限】后,将这个二维码分享给好友,好友使用微信扫码后,就可以进行图纸内容的查看了。

CAD迷你画图分享图纸给好友的方法二
1、还是先打开需要进行分享的图纸,然后点击【账号】图标,然后点击选择【分享或接收图纸】选项。

2、接着在弹出的窗口中,点击【分享当前图纸】按钮。

3、最后,在弹出的发送图纸给好友窗口中,设置好【下载权限】,最后点击分享图纸链接右侧的【复制】按钮,将链接分享给好友,好友点击该链接即可进行图纸的查看了。

以上,就是财神爷站小编为大家总结的关于CAD迷你画图不开会员能不能保存图纸、不开会员能不能分享图纸给好友以及具体的图纸分享方法的步骤介绍了。
小编推荐:
CAD迷你画图能用微信登录吗
哪款CAD制图软件有转换功能
哪款CAD制图软件登录超便捷